AVA.relax von COSOBA
M it der AVA Software AVA.relax hat sich COSOBA in den letzten Jahren als führender Anbieter einen Namen gemacht. Bereits seit den 90’er Jahren entwickelt das Darmstädter Softwarehaus eine CAD AVA Brücke und gilt als einer der Pioniere bei der modellbasierten Umsetzung im BIM Prozess (Building Information Management) hier zu Lande. Der besondere Mehrwert der Software besteht in einer ganzen Palette ergänzender Zusatztools die BIM orientiertes Arbeiten nachhaltig vereinfachen und für interdisziplinäre Durchgängigkeit sorgen: AVA – Ausschreibung Vergabe Abrechnung Das Kernelement der Software wird bereits seit Jahrzehnten von Architekten und Ingenieuren aller Disziplinen und Sparten für die Ausschreibung, Bietervergleich und Kostenkontrolle von Bauvorhaben sowohl im privaten als auch im öffentlichen Bereich erfolgreich angewendet. BIM Bauzeitenmanagement AVA.relax verfügt über eine Bauzeitkalkulation bis zur Positionsanteilebene. Die intelligente Datenbank verknüpft Gewerke und Aufgaben in zeitlicher Abhängigkeit, verwaltet zur Verfügung stehende Ressourcen wie beispielsweise Personal und Maschinen und liefert als Ergebnis einen präzisen Bauablaufplan der sich ständig bei Änderungen im Projekt aktualisiert. BIM Bautagebuch AVA.relax kennt bereits durch den vollständig abgebildeten AVA Prozess alle relevanten Daten, die beim Führen eines Bautagebuches wichtig sind. Der Anwender kann mit Hilfe der mobilen App auf der Baustelle Bilder, Besprechungsprotokolle und Ereignisse dokumentieren und online im Büro Kosten und Termine abgleichen. BIM Raum-/und Gebäudebuch Die AVA Software AVA.relax erlaubt einen permanenten Wechsel zwischen der LV-, Raum-, Geschoss- oder Bauabschnittsicht. Dies ermöglicht dem Anwender maximale Transparenz auf sämtliche Projektdaten. Durch den integrierten 3D BIM Viewer werden Kosten und Zeiten erstmals in der CAD sichtbar. AVA.relax ist für Anwender gedacht, die sämtliche HOAI Phasen mit einem Werkzeug abdecken möchten und dabei nicht auf unterschiedliche Softwarekomponenten verschiedener Hersteller zurückgreifen wollen. Die durchgängige Benutzerführung in der gleichen Programmoberfläche vereinfacht die Bedienung, sämtliche Daten liegen in einer Datenbank und lassen aufwendige und fehleranfällige Schnittstellenkonfigurationen vollständig entfallen. Eine laufzeitbegrenzte Vollversion steht für Interessierte auf www.cosoba.de zum Download bereit.
Bild oben: AVA – Ausschreibung Vergabe Abrechnung; Bild unten: BIM Bauzeitenmanagement
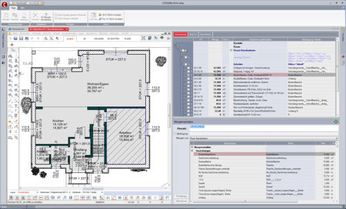
Bilder unten: BIM Raum-/und Gebäudebuch